Lauko treniruoklis suoliukas 1103
954.00€
Turime
Produkto kodas:
1103
Kategorijos: Lauko treniruokliai PREMIUM, Lauko žaidimų įranga
Žymos: lauko treniruoklis, treniruoklis
Aprašymas
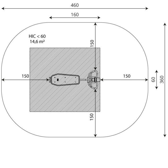
Saugos zona 14,60 m2
Ilgis 160 cm
Plotis 60 cm
Bendras aukštis 132 cm
Laisvo kritimo aukštis <60 cm
• 100 x 100 mm cinkuota ir milteliniu būdu padengta arba nerūdijančio plieno konstrukcija,
• Konstrukcijos viršus pritvirtintas patvariais plastikiniais dangteliais,
• milteliniu būdu cinkuoti ir milteliais padengti plieniniai arba nerūdijančio plieno strypai,
• Nerūdijančio plieno varžtai,
• Polikarbonato ir HDPE telefono laikiklis
Galimas spalvų pasirinkimas.
